EN/ES
MASTERPLAN
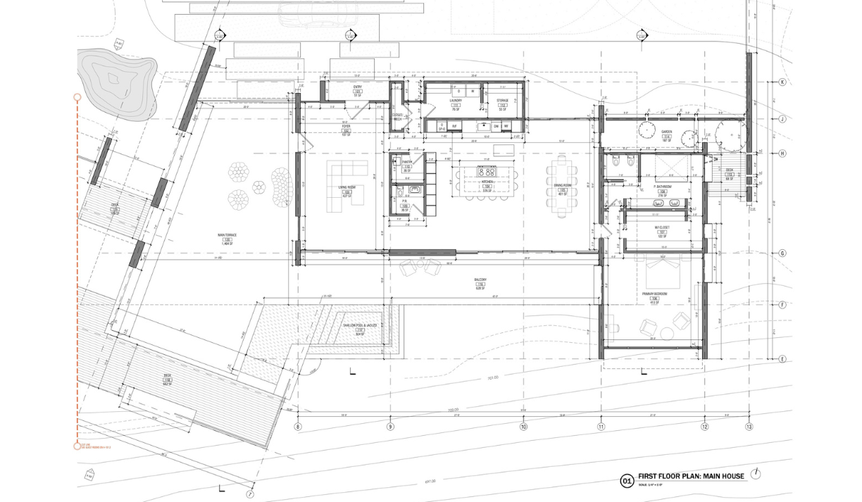
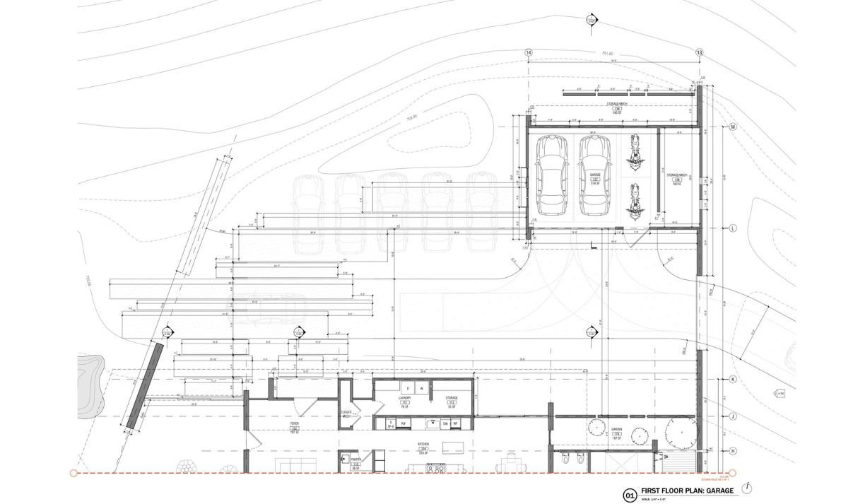
FLOORPLANS
SITE UNDERSTANDING
CONTACT